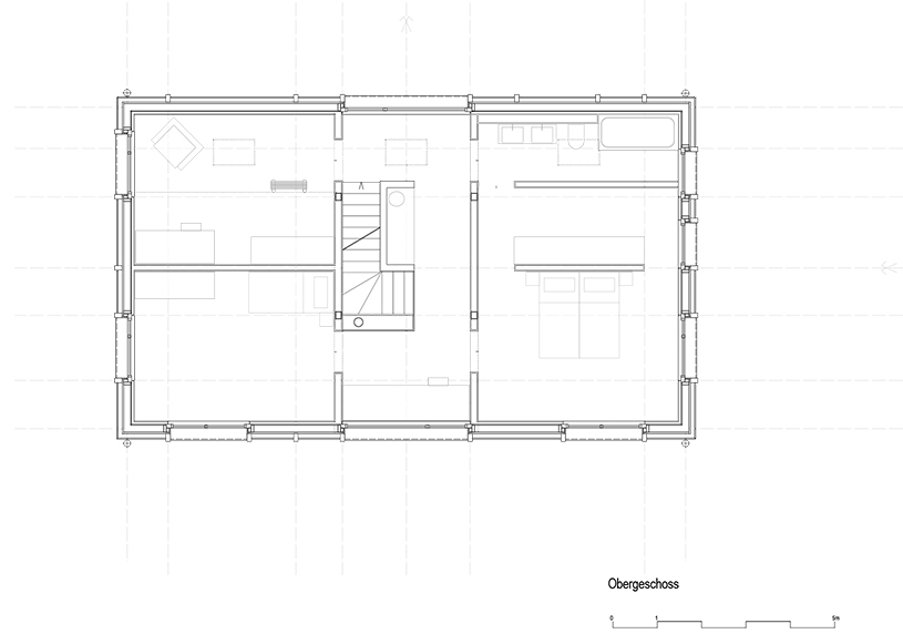
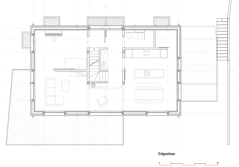
Ersatzneubau Einfamilienhaus mit Studio in Holz
am Lochmühleweg 7 in Spiez

Planung 2021, Realisierung 2023-2024

Bauherrschaft: Privat

Ausführung: Andrist Montagen AG

Holzbau: Stauffacher Charpentes SA

Bauplan herunterladen

Um die Webseite für Sie optimal zu gestalten und fortlaufend verbessern zu können, verwendet diese Webseite Cookies. Weitere Informationen zu Cookies erhalten Sie in unserer Datenschutzerklärung.